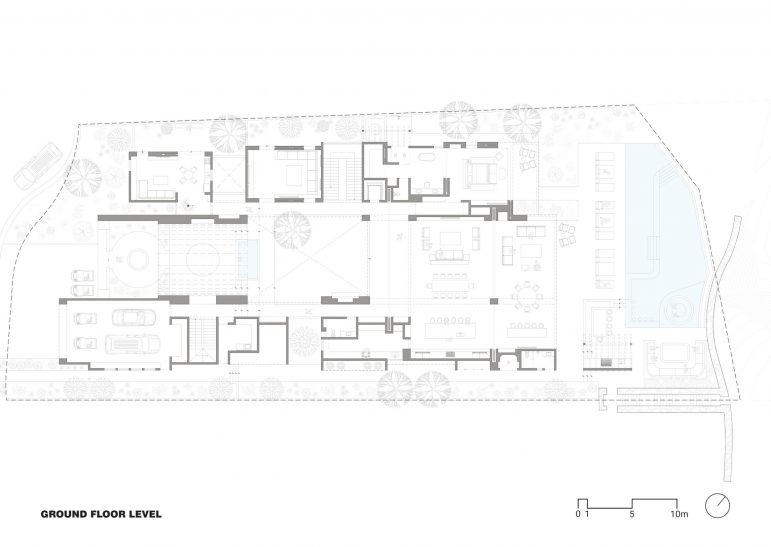
CASA LA PLAYA 03
CHILENO BAY CLUB
LOS CABOS BCS, MEXICO
Architectural Design / Landscape Design
Status: Project – 2021
Area: 20,670 Sq ft / 1,920 Sq mts
The house is located on a privileged ocean front lot.
Located in one of the most exclusive residential communities in Los Cabos.
CHILENO BAY CLUB
LOS CABOS BCS, MEXICO
Architectural Design / Landscape Design
Status: Project – 2021
Area: 20,670 Sq ft / 1,920 Sq mts
The house is located on a privileged ocean front lot.
Located in one of the most exclusive residential communities in Los Cabos.















