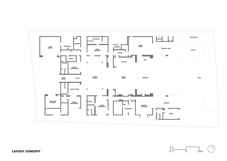
CASA RE18
CHILENO BAY CLUB
LOS CABOS BCS, MEXICO
Architectural Design / Landscape Design / Interior Design
Status: Built
Area: 12,006 Sq ft / 1,115 Sq mts
Custom single family residence with great ocean views.
The main concept of the house is the relationship between exterior and interior spaces, bound together by a central courtyard patio.
CHILENO BAY CLUB
LOS CABOS BCS, MEXICO
Architectural Design / Landscape Design / Interior Design
Status: Built
Area: 12,006 Sq ft / 1,115 Sq mts
Custom single family residence with great ocean views.
The main concept of the house is the relationship between exterior and interior spaces, bound together by a central courtyard patio.























