CASA HV311
CHILENO BAY CLUB
LOS CABOS BCS, MEXICO
Design – Build / Landscape Design / Interior Design
Status: Completed 2019
Area: 9,170 Sq ft / 850 Sq mts
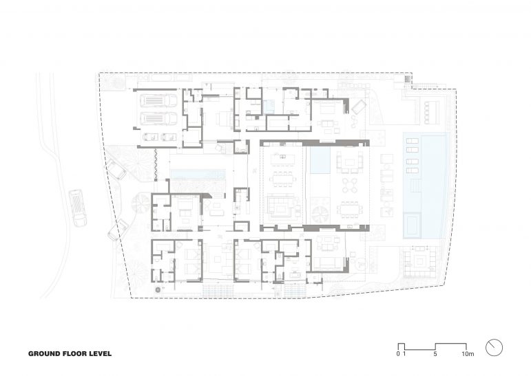
Custom single family residence with great ocean views. The main concept of the house was the unification of the social areas, and the programmatic separation of the great room with the outdoor terrace. A small transition between them through a small garden and fountain in order to obtain a feeling of being “out of the house” in an outdoor enclosed setting.
CHILENO BAY CLUB
LOS CABOS BCS, MEXICO
Design – Build / Landscape Design / Interior Design
Status: Completed 2019
Area: 9,170 Sq ft / 850 Sq mts
Custom single family residence with great ocean views. The main concept of the house was the unification of the social areas, and the programmatic separation of the great room with the outdoor terrace. A small transition between them through a small garden and fountain in order to obtain a feeling of being “out of the house” in an outdoor enclosed setting.

















